艺术设计日志-于物设计
  • 首页
  • 方案文本
    • 策划文本
    • 规划文本
    • 建筑文本
    • 景观文本
    • 室内文本
    • 专题资料
    • PPT模板
  • SU模型
    • 规划SU
    • 建筑SU
    • 景观SU
    • 室内SU
    • 植物SU
    • 材质SU
    • 雕塑小品SU
    • 人物动物SU
    • 标识广告SU
    • 交通工具SU
  • PS素材
    • 竞赛展板
    • 剖立面图
    • 分析图
    • 彩平图
    • 效果图
    • 植物
    • 笔刷
    • 线稿
    • 人物动物
    • 单体素材
    • 图案肌理
  • CAD
    • 综合图库CAD
    • 规划设计CAD
    • 建筑设计CAD
    • 园林景观CAD
    • 室内设计CAD
    • 平立剖图CAD
    • 节点详图CAD
  • 材质贴图
  • LUMION
    • Lumion参数
    • Lumion场景
    • Lumion材质
  • Enscape
  • D5
    • D5参数
    • D5场景
    • D5材质
  • 软件
    • 影视动画
    • 渲染类
    • 系统办公
    • 绘图后期
    • 综合插件
    • 视觉平面
登录

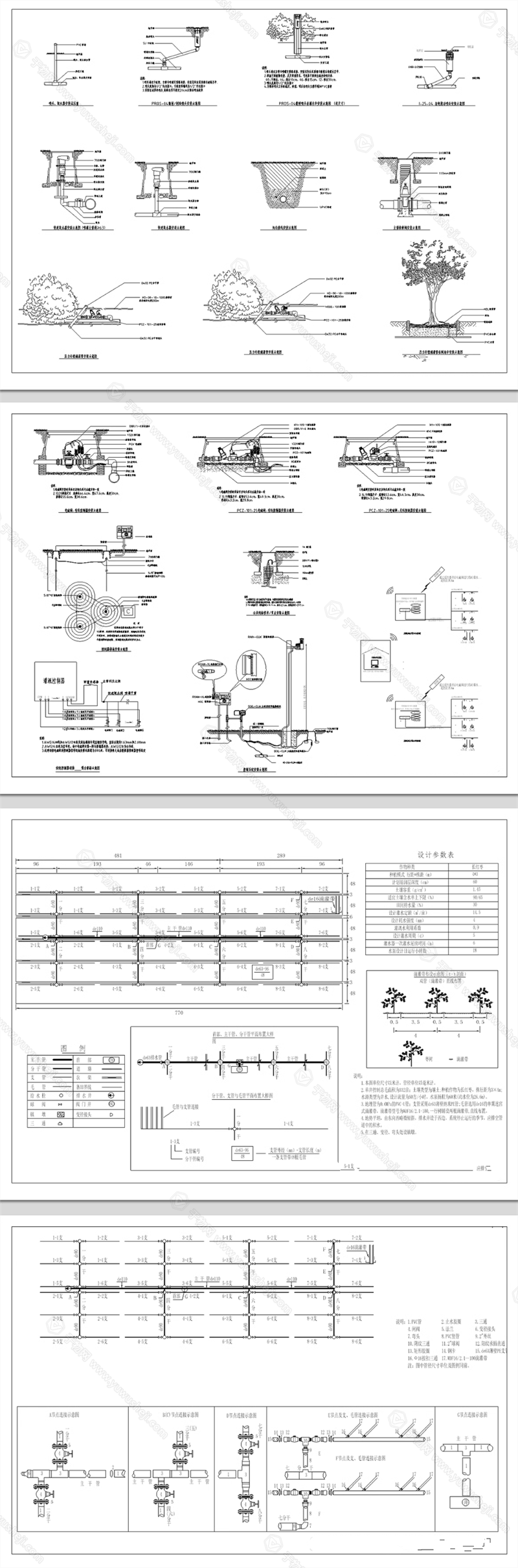
C65-喷灌浇灌系统CAD施工图 园林绿化给水庭院自动做法安装大样图详图

CAD 28

01 98 2025 03 27 164506

免责声明:本网站部分内容由用户自行上传,如权利人发现存在误传其他作品情形,请及时与本站联系。

相关文章

C110-海绵城市地面排水系统CAD施工图 雨水花园生态植草沟节点大样图库

C110-海绵城市地面排水系统CAD施工图 雨水花园生态植草沟节点大样图库

C109-防腐木铺装CAD施工图庭院景观木平台塑木地板节点大样图做法详图

C109-防腐木铺装CAD施工图庭院景观木平台塑木地板节点大样图做法详图

C108-教学楼CAD施工图 综合楼小学中学大学建筑方案设计图库平面布局图

C108-教学楼CAD施工图 综合楼小学中学大学建筑方案设计图库平面布局图

C106-非机动车停车棚CAD图库 电瓶车钢结构车棚雨棚大样做法详图施工图

C106-非机动车停车棚CAD图库 电瓶车钢结构车棚雨棚大样做法详图施工图

C99-花箱花池花坛CAD施工图 景观防腐木商业街道外摆移动式节点图库

C99-花箱花池花坛CAD施工图 景观防腐木商业街道外摆移动式节点图库

C98-流水景墙庭院居住区新中式山水格栅节点大样图做法详图CAD施工图

C98-流水景墙庭院居住区新中式山水格栅节点大样图做法详图CAD施工图

儿童活动运动设施标语导视牌口号跑道CAD模块

儿童活动运动设施标语导视牌口号跑道CAD模块

C102-园林景观公园植物组团CAD图库 种植平面图绿化配置树木施工图图例

C102-园林景观公园植物组团CAD图库 种植平面图绿化配置树木施工图图例

资源信息

  • 普通用户用户特权:28金币
  • 超V会员用户特权:免费
  • 永久会员用户特权:免费推荐
其他信息
  • 有效期

    购买后永久有效

会员可直接点击下载,非会员可选择开通会员后下载或直接购买资源,如有疑问请咨询于物专属微信客服 - ☺
下载热度排行榜
  • 1 美丽乡村主题文旅特色小镇PSD毕业展板素材文本su模型合集
  • 2 Enscape渲染参数合集效果图预设参数建筑景观鸟瞰效果图
  • 3 城市街头口袋公园景观设计方案文本小型街角公园案例SU模型CADyw13
  • 4 高级感分析图标箭头指北针png免抠psd源文件素材
JZSU110-草图大师民宿度假村酒店中式现代别墅客栈旅游创意外观建筑SU模型

JZSU110-草图大师民宿度假村酒店中式现代别墅客栈旅游创意外观建筑SU模型

4 周前 22
Z100-唐宋古风植物山水画免扣PNG素材PSD分层源文件

Z100-唐宋古风植物山水画免扣PNG素材PSD分层源文件

1 年前 20
GGJZ7-新中式传统文化展览馆展厅博物馆历史陈列馆建筑草图大师SU模型库

GGJZ7-新中式传统文化展览馆展厅博物馆历史陈列馆建筑草图大师SU模型库

2 周前 22
Z62-水戏巢栖胥江水环境治理与生态修复设计实践展板PSD模版

Z62-水戏巢栖胥江水环境治理与生态修复设计实践展板PSD模版

1 年前 10
艺术设计日志-于物设计

关于我们
  • 于物协议
  • 关于于物
  • 加入我们
  • 联系与合作
帮助中心
  • 在线客服
  • 会员权益
  • 版权投诉
  • 隐私政策
友情链接
  • 于物设计

Copyright © 2021 于物设计 | 渝ICP备2022008042号 | 渝ICP备2022008042号

  • 首页
  • 分类
  • 我的
  • 客服
  • 顶部
PS素材 SU模型 su模型 中式景观 乡村景观 乡村景观 公共建筑 公园景观 分析图 商业景观 居住区景观 庭院景观 建筑SU 建筑文本 方案文本 景观SU 特色建筑 设计素材